Einfamilienhaus
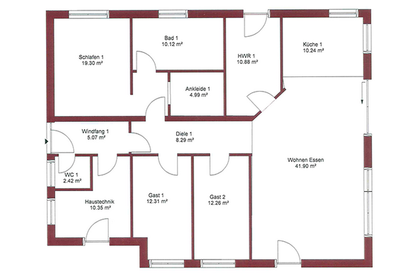
Perfekte Planung und moderne Umsetzung des stufenlosen und seniorengerechten Bauens. Ein stilvoller und hochwertiger Bungalow ohne Keller und Dachgeschoss.

Perfekte Planung und moderne Umsetzung des stufenlosen und seniorengerechten Bauens. Ein stilvoller und hochwertiger Bungalow ohne Keller und Dachgeschoss.