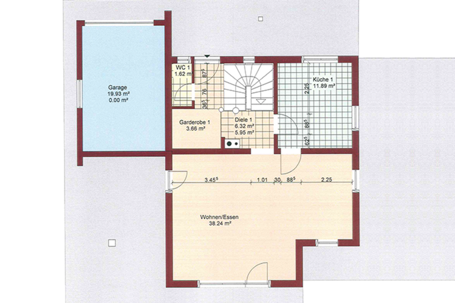
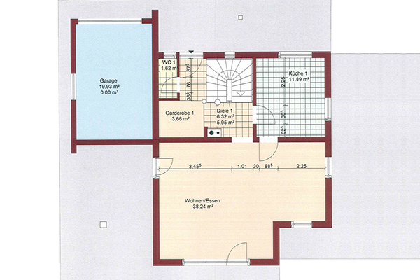
Einfamilienhaus + Einliegerwohnung 07.03.2024 Lebensqualität in jeder HinsichtDurchdachte und solide Raumaufteilung, maßgeschneidert für das kleine Grundstück. zurück