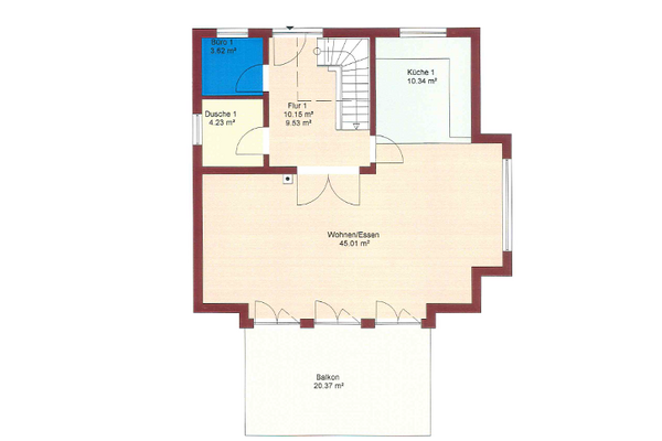
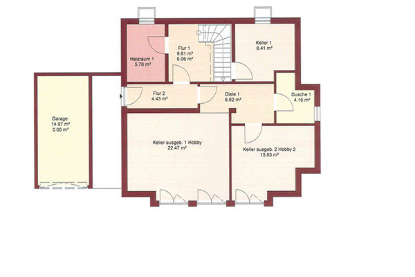
Einfamilienhaus + Einliegerwohnung
In jeder Hinsicht und auf jeder Haus-Ebene perfekt geplant und durchdacht, überzeugt dieses Einfamilienhaus durch hochwertige Ausführung und wird allen Ansprüchen gerecht.

In jeder Hinsicht und auf jeder Haus-Ebene perfekt geplant und durchdacht, überzeugt dieses Einfamilienhaus durch hochwertige Ausführung und wird allen Ansprüchen gerecht.