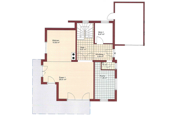
Einfamilienhaus + Einliegerwohnung
Eine sehr gelungene und komfortable Raumaufteilung schafft Platz für die ganze Familie.
Die optimale Ausnutzung überzeugt und schafft ein Raumgefühl bis unters Dach.

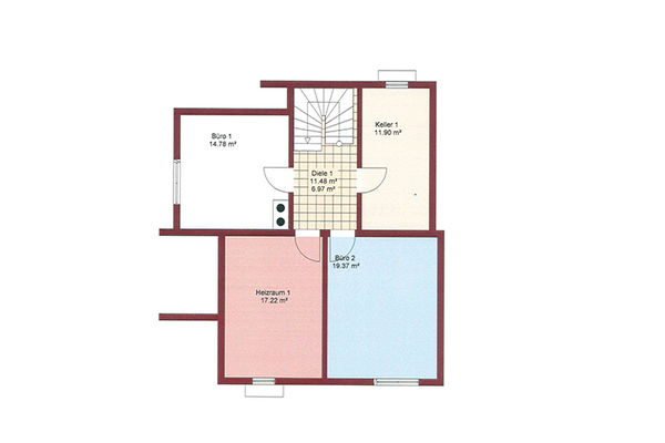
Eine sehr gelungene und komfortable Raumaufteilung schafft Platz für die ganze Familie.
Die optimale Ausnutzung überzeugt und schafft ein Raumgefühl bis unters Dach.